
作者:anke1001 日期:2019-09-29
新型的施工技術,對建筑工程施工具有非常重要的影響。它可以降低施工的成本,提高施工的效率,還能保證施工的安全。現如今的高層建筑都會采用鋁模板進行固定支撐,運用該材料進行建筑項目的整體施工,不僅能夠顯著提升工程的施工效率,而且還不耗費大量人力物力。
但是鋁模板在施工中有很多問題?
例如:鋁模進行安裝的過程中,施工人員總是需要吊裝工具將材料吊裝上來才可以進行安裝,影響工程進度的同時,施工人員的人身安全危險系數也大大增加。
小編推薦鋁模板的黃金拍檔——爬架
爬架自身所具備的可提升性能,不僅給鋁模施工帶來益處,同樣對于安裝施工人員也能夠提供一份安全保障。

爬升流程
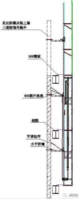
爬架在作業工況時設置兩道兩道附墻,爬架提升前,需等澆注結構拆模后,裝上第三道附墻方可爬升。爬升完成后把底部附墻拆掉。
(示意圖)

(爬架爬升示意圖)


立面封閉
防護安全網采用沖孔網經龍骨焊接框架組合,具有耐腐蝕、絕燃、抗沖擊特點。

采用“鋁模板+爬架”體系的優越性,是傳統施工技術所不能比擬的,是當今房建市場最優質的工藝和國家的節能、環保要求接軌,對建筑業來說是巨大的進步和革新。

鋁模板+爬架的強強聯合,才能實現節省工期的目的。
一、鋁模板+爬架的優勢
“鋁模+爬架”是當前建造體系的標準框架配置。鋁模結合建筑外圍采用全剪力墻設計,砼實測數據、觀感效果好,能實現“零抹灰”或者“薄層抹灰”的效果,且對防滲漏具有重要意義。爬架整體設計美觀、防護效果好,與鋁模體系搭配,能實現外墻底層涂料飾面及鋁合金外窗、欄桿工程與主體工程的同步施工,能有效進行穿插,為有效控制工期墊定基礎。
【1】施工進度方面
1、鋁模的施工周期短,重復使用率高,并具有組裝方便、應用范圍廣泛的優勢,可完全由人工拼裝,經過短期培訓后的工人,每天可安裝30平方米左右,3-4天完成一層結構層;而木模需要5-6天澆筑一層,而且它適應于各種墻體、水平樓板等,連二次結構和異型構件都能同步施工,施工進度大大加快,時間成本大大降低

2、“鋁模+爬架”在施工期間,在遇到工地上臨時停電、下雨等情況,鋁模也可以正常施工,無任何觸電危險。同時,附著式升降腳手架的數字化控制,讓“升降”程序的進行不影響各工種施工,從某種角度上講,施工進度不受外界影響。而木模都是在場外拼裝好采用塔吊吊運到倉面,遇到下雨、大霧等惡劣天氣,是禁止特種設備施工的,從而施工進度也將會受到影響。

【2】木模板和鋁模板對比施工質量
1、傳統的木模偏差值在10毫米以上,易變形,均采用扣件、鋼管定位校模,垂直度采用錘坨,偏差達到1CM,尤其是外圍柱,木模加固點多面廣,且容易“跑模”,需要有技術水平純木模工人。
2、由于木模制作不精細,使用次數達到3次以上因接縫有水泥、砂粒等情況,經常需要校正處理,吸水后易發生變形和膨脹,精確度無法達到,至少超出15mm的偏差。
(木模板PK鋁合金模板)

3、在制作方面,陰陽角鋁模是一塊成型的90度角模,由電腦制圖加工,機械生產極為標準,組裝精度高,開間尺寸都不會超出5mm,而木模制作則達不到。
4、相比較之下,鋁模的構件尺寸偏差值均在毫米之間,鋁模柱的根部定位采用焊接固定,垂直度采用激光儀器,精確到了5mm之內,其上下層交界處有一塊混凝土固定的共用模塊,不易錯臺;而木模在澆筑過程中,若加固不到位易“跑模”,導致錯臺。

【3】施工安全方面
1.傳統的木模是由零散的木方和模板組成,需一塊模板、一根木方的進行傳統拼裝,它以鋼管扣件和頂托為支撐,操作不夠靈活。材料需塔吊提升,必須使用電動工具有可能出現人員違規操作傷人等情況。
2、附著式腳手架(爬架)的運用,也能為施工樓棟的安全性保駕護航。傳統的外架一般從地而起,采用懸挑工字鋼和鋼絲繩拉索加固。而附著式升降腳手架以定型鋼支架為依托,外圍鋼管架只有17米高,采用密目安全網和塑鋼網雙層封閉,底座采用模板或鋼網片全封閉,每盤操作架都用防護板滿鋪,做到層層防護。爬行升降過程由電腦操控。

3、文明施工方面,鋁模系統全部配件均可重復使用150-300次,一套模具、三套支撐架的固定搭配,讓施工過程中不需用更改模具支模體系,可循環交替使用,讓施工場地找不到多余的材料。隨著樓層的升高,附著式升降腳手架同步上升,與鋁模結合使用,無須更換結構,標準防護。
二、完美搭檔 凸顯價格優勢
鋁模與爬架這對“黃金搭檔”的使用,凸顯出安全、進度、質量、成本等各項效益方面得到了“雙控”,大大的縮短了工期。
1、鋁模使用的總工期比傳統的木模縮短2個月,同時為項目大量節約了設備租賃費用和材料周轉費用。

2、采用的附著式升降腳手架(爬架)在自行升降拆除時不用塔吊垂直運輸,裝飾材料均用施工電梯運輸,故完成層面工程后塔吊即可拆除,可以節約4個月的設備租賃費用。

3、根據鋁模的平整度、垂直度、標高控制度、腳線水平度等數據顯示,鋁模構件平整光潔,可節約一定費用。采用傳統的木模時,使用次數多,模板易變形,所施工的構件必須進行二次裝修才能達到交房標準,廢材費時。

4、鋁模施工過程中不需要鋼管扣件、頂托、建筑物內的操作板等輔助性材料,還不需要垂直運輸設備和小型電動工器具,,也不需要外部吊運材料的卸料平臺,節約了一大筆費用。附著式升降腳手架,只有17米固定高度,可以看出,“鋁模+爬架”技術結合使用,可降低成本。
5、“鋁模+爬架”的使用可減少建筑垃圾,與木模和滿架相比,文明措施費用相應要節約30%。
本文來源:施工 微信公眾號 建筑工人
僅做交流分享